室内设计联盟官网-设计师互动平台 

南昌阿鹤设计|“美”的理所应当,他们和猫都喜欢!

2018-8-15 18:25| 发布者: 阿鹤2009| 查看: 1435| 评论: 2|原作者: 阿鹤2009|来自: 南昌阿鹤设计工作室

摘要 : 南昌阿鹤设计工作室 【工程地址】:南昌【项目性质】:半包 【设计风格】:Eclectic 【设计单位】:阿鹤设计工作室【摄 影】:林峰 【编 辑】:阿拉蕾 ...


AH DESIGN STUDIO


阿鹤 设计工作室







【工程地址】:南昌
【项目性质】:半包
    【设计风格】:Eclectic
                【设计单位】:阿鹤设计工作室
【摄      影】:林峰
   【编      辑】:阿拉蕾


                                                 决定将这套房子装修时,就不想做一个随波逐流的人。
                                             现代、美式、地中海、新中式、日式、北欧,这些框架我统统不要,把这些风格显而易见的特点都抛弃之后,哪些才可以装进我的房子里呢?

                                                  我想要一整面墙的黑色书柜装我那些无聊的闲书,我想有个大大的投影幕布看我喜欢的电影,我想有个色彩温馨的餐厅,我想有个颜色不一样的厨房,
                                                  我想给女儿一个毕生难忘的小树屋可以让她开心地爬进去玩耍,难过时可以躲在里面疗伤,我还想有个黑色金属框架的淋浴房,美丽的幻想总是需要有人去实现的。

                                                  我见过太多业主最后装完之后的家与效果图完全是两套房的情况,直到在朋友那儿见到阿鹤为她打造的家,我就知道这是我要找的人。
                                                  还好在这座城中遇见了阿鹤,在寻找设计师时,遇见大牌,遇见手握几百张效果图的推销,都不稀罕,难得的是遇见了解。

                                                  他用精湛的图纸和超强的执行力满足了我对一所房子的所有幻想。
                                                  如你们所见,这是一套色彩鲜艳,充满活力,有趣的房子,为了让一切都达到设计要求,我们花了许多时间在本地和全网搜索材料,

                                                  主卫的黑色金属框架淋浴房是我的最爱,它来自上海一家专做民国老式窗户的厂子;
                                                  全屋柜子的油漆我们请了城中做漆最棒的店家现场制作,只为站在柜前可以亲眼看见和触摸那细腻的质感;

                                                  所有柜门的款式,在查阅了很多国外资料后,选定了Shaker风格,这是在美国已经流行了60年以上的经典柜门款式,其实在欧洲历史更悠久,
                                                  唐顿庄园和了不起的麦瑟尔夫人里都有同款,柜门拉手是阿鹤从网上搜来的;

                                                  所有的家具和软装,都由阿鹤亲自挑选搭配,搬进家中摆设好之后,整个家就亮了。

                                                  谢谢阿鹤和他的那群可爱的年轻人们对我们家的付出和帮助,谢谢你们。


                                                                                 
                                                                                                                                                                                                                    业主感言.


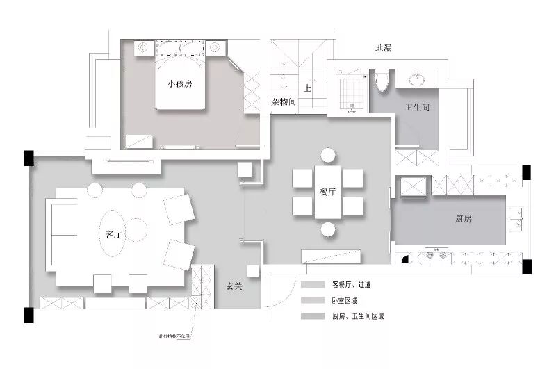
一楼方案

二楼方案


玄关

入户玄关,考虑的是功能至上,穿衣镜,换鞋凳,挂衣架,置物篓一样都不可少,地面的小砖拼花与客厅地板高差设计是为了更好的把鞋子所带的泥沙与客厅完全隔开。


客厅

走进这个家,首先被吸引的是一个环抱式的客厅,一边围壁炉,一边可眺望远方,耳边传来的便是家人阵阵幸福的嬉笑声~



“家是要满足人真实生活需要的地方,而居住更不是硬装拗造型。”这个位于南昌市老城区的跃层公寓有着巴黎艺术气息,又有着法式精致细节,风格杂糅却能和谐共存,Eclectic风格的包罗万象、兼收并蓄由此可见一斑。


设计师为居住成员休闲、交谈、娱乐而打造的家庭厅,成为了家庭成员情感互动的场所,让生活重回本来的意义。



餐厅





厨房


女儿房

作为有宝贝的家庭,父母总是忍不住会把家里最好的区域留给孩子,譬如最方便的一楼和光线最美的位置就成了孩子的起居室。设计师因考虑到孩子的成长需要,还设计了一些弹性空间,特意将衣柜打造成半开放式的“树屋”,让她开心地爬进去玩耍,难过时可以躲在里面疗伤,让最爱的猫咪也充盈在她纯真的梦乡中




一楼卫生间

主卧室

相比于美剧中不苟言笑的中年夫妇之家,设计师用莫兰迪蓝色跳出整个画面,更适合业主随性追求自由的心。


二楼卫生间

当卫生间不再只是卫生间,而是一道靓丽的风景,生活轨道也在不知觉中悄悄改变着。


二楼楼梯间

书房



洗衣房

露台

一杯茶,一本书,一片阳光,一个下午,伴随着时光流逝的不是无聊和寂寞,而是一种充实的温暖和放松、舒适的生活格调。






      专注家居全案设计我们敢于创新

      我们以追求完美为习惯

      我们不曾敷衍

      不曾草率

      不曾将就

                                                                    

                                          

                                                                     


                                                                                                                                                                          欢迎朋友联系我了解更多详情:

                                                                                                                                                                          QQ   / 714259448

                                                                                                                                                                          Tel   / +86 137-6711-9524

                                                                                                                                                                          微博 / @张鹤龄的设计空间



微信图片_20180815181232.jpg



                                                                                                               




路过

学习

难过

搞笑

愤怒

垃圾

一般

很棒
高清图片
发表评论

最新评论

引用 lyg907 2018-9-4 23:09
8888888888888888888888888
引用 小倾城 2018-9-7 15:51
还挺好看的 那个楼梯我就想到了鬼手帕的那个  只是一楼漫天的筒灯看的我不舒服  

查看全部评论(2)

关闭

站长推荐 上一条 /1 下一条

加微信群

只欢迎设计师加群,做广告的一律不允许,加群请先加微信:snsjlm0

官方微信

关注微信锁定精彩,每日推送精选案例或资讯,公众号:snsjlm!

领取资料

免费领取今年最新设计素材,请联系微信:snsjlm520!

奖项证书

打通协会设计认证通道,提供证书申报服务,微信:13436879894!

  • 联系客服
    •   QQ 44247496

    •   13693232461
    • 工作日:早9点晚6点


      备用联系:15011229364(电话/微信)

  • 二维码

    官方微信/小红书

    关注室内设计联盟

    • 微信扫一扫关注本站公众号

      关注本站公众号
    • 小红书

      关注小红书
  • 发布
  • 收藏
  • 签到