室内设计联盟官网-设计师互动平台 

高博

积分:2555

私信

本帖最后由 高博 于 2017-7-10 22:58 编辑

户型概况

平层住宅
建筑面积:92平米
常住人口:夫妻二人+5岁女儿
业主需求

卫生间干湿分离
需要独立的办公区
充足的储物空间
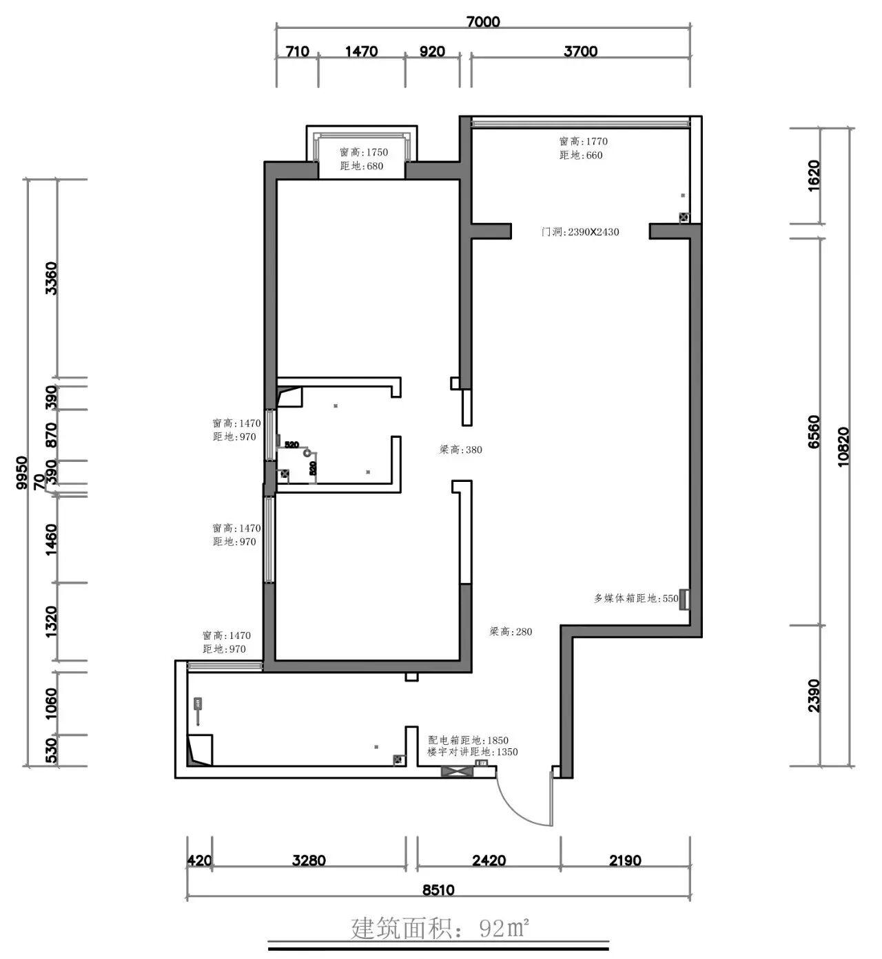
原始户型



户型难点


1.入户门厅采光较弱且冲尖角;
2.厨房没有合适冰箱位置;
3.卫生间过于空间狭小;
4.储物空间过少;
5.没有独立的办公区域。
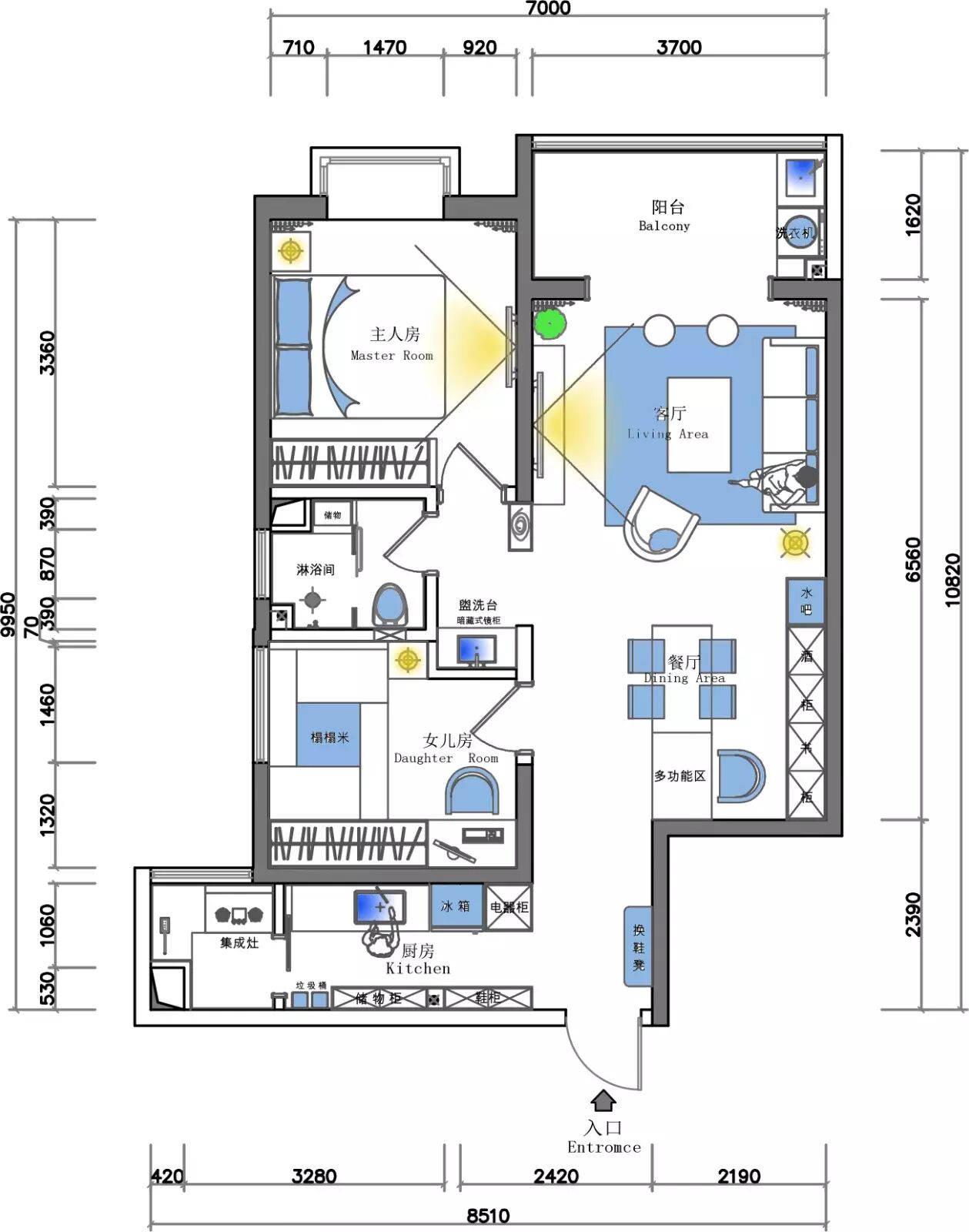
优化后户型




厨房的改造
1.原始厨房结构空间结构使用空间有限,进行综合考虑,厨房设计“干湿分离”冰箱、电器柜、洗菜区、切菜区设计为开放区域,炒菜区设计为封闭区域,避免炒菜时油烟问题,同时入户区域视野开阔,可容纳更多的储物空间。门厅1米长的换鞋凳方便业主和小孩同时使用。

2.L形橱柜方向做颠倒,更加有效的利用空间。

洗手间的改造
1.原始洗手间空间拘泥于一体,无法满足业主需求,盥洗台借用女儿房空间进行凹入设计,台面空间增加到1米。

2.坐便移位(选用壁挂式坐便器),更加有效利用空间,腾出独立的淋浴房空间。

餐厅的改造
1.多功能工作台与餐桌连为一体,即可满足男业主独立工作区,亦可满足女业主做烘焙,多人聚餐等功能,同时也增大了客餐厅的储物空间。

2.餐厅书柜、酒柜、水吧一体式设计,满足业主不同空间,不同时间的生活需求,提升生活品质。




厨房意向图
餐厅意向图
水吧意向图
客厅意向图

洗手间意向图
女儿房意向图
阳台意向图

 

 

高博

积分:2555

私信

全部评论
回帖奖励 3 金钱 回复本帖可获得 1 金钱奖励! 每人限 2 次
沙发
高博 2017-7-10 22:59 来自: 重庆

欢迎大家关注我的个人公众号:卓晟365课堂
您需要登录后才可以回帖 登录 | 注册

本版积分规则

关闭

课程推荐 上一条 /1 下一条

加微信群

只欢迎设计师加群,做广告的一律不允许,加群请先加微信:snsjlm0

官方微信

关注微信锁定精彩,每日推送精选案例或资讯,公众号:snsjlm!

领取资料

免费领取今年最新设计素材,请联系微信:snsjlm520!

奖项证书

打通协会设计认证通道,提供证书申报服务,微信:13436879894!

  • 联系客服
    •   QQ 44247496

    •   13693232461
    • 工作日:早9点晚6点


      备用联系:15011229364(电话/微信)

  • 二维码

    官方微信/小红书

    关注室内设计联盟

    • 微信扫一扫关注本站公众号

      关注本站公众号
    • 小红书

      关注小红书
  • 发布
  • 收藏
  • 签到