室内设计联盟官网-设计师互动平台 

25实景 24实景 素材严选 设计师证书申报通道
1

素 材 描 述


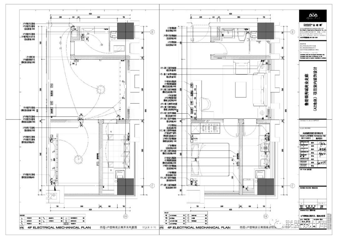
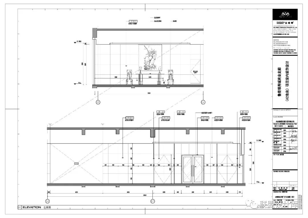
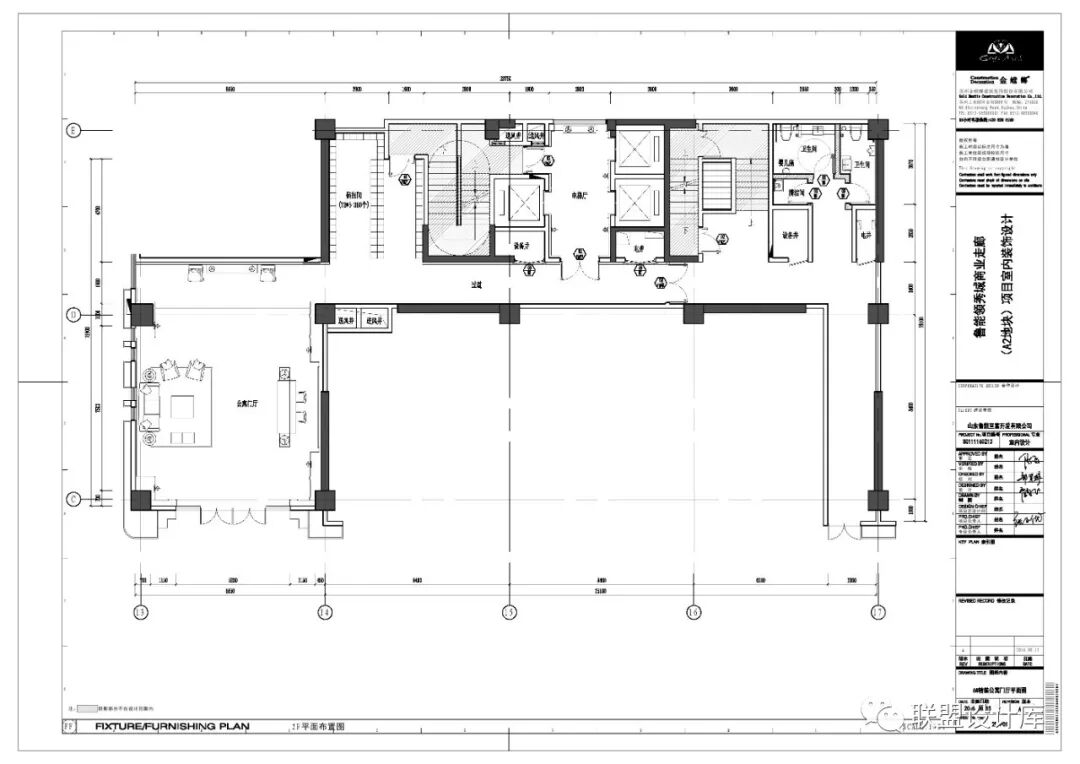
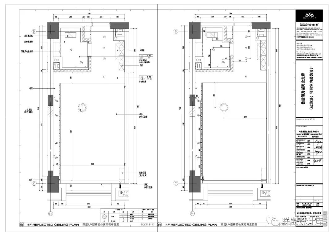
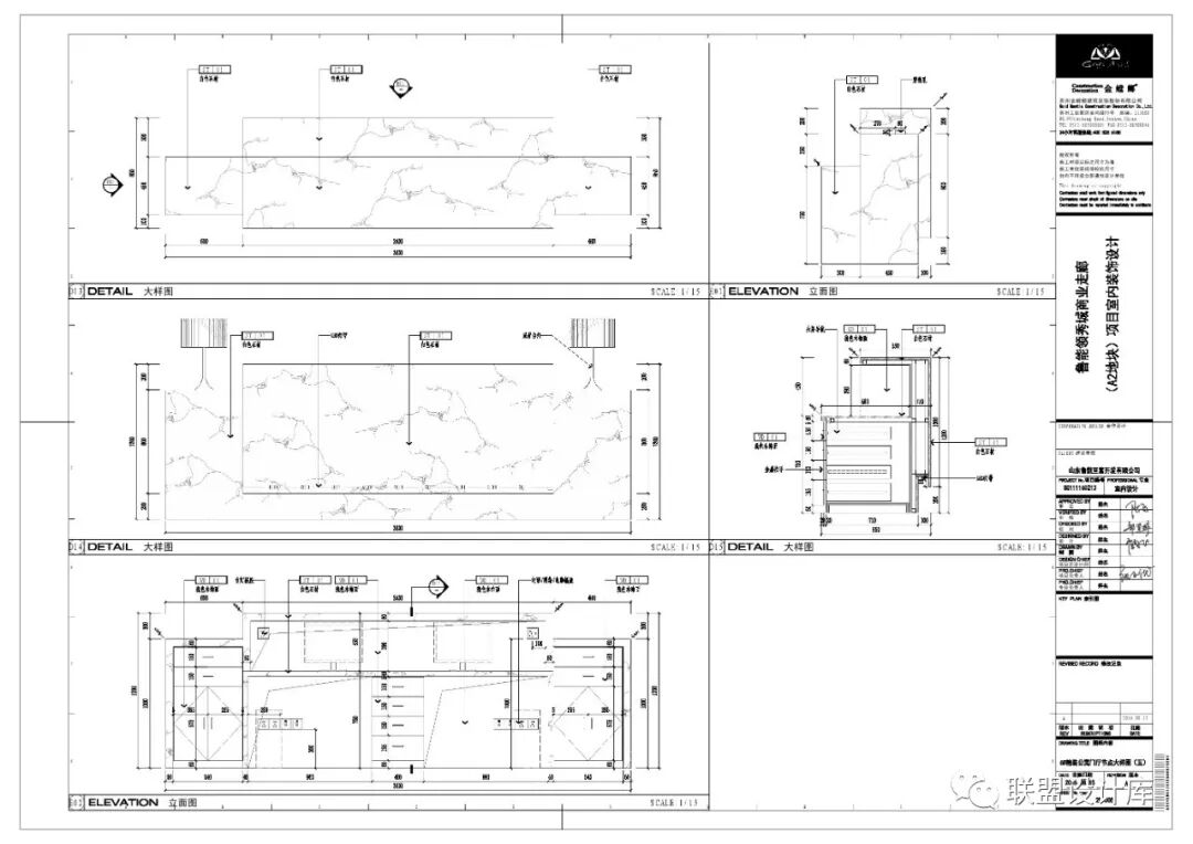
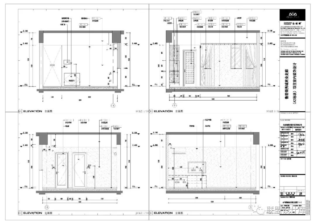
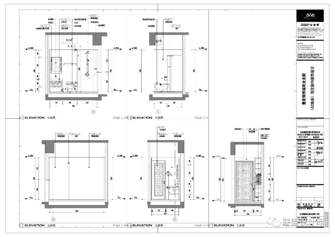
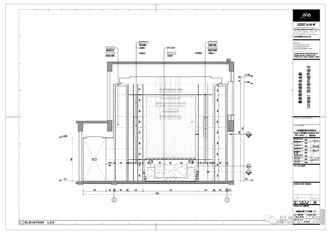
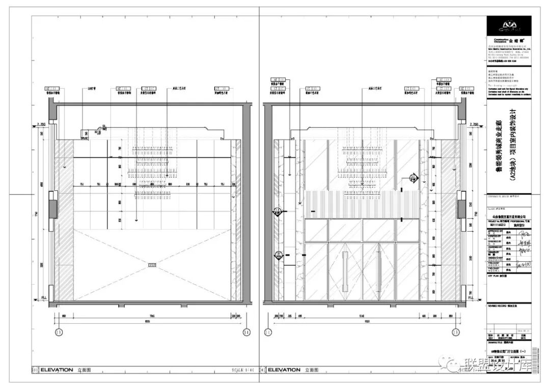
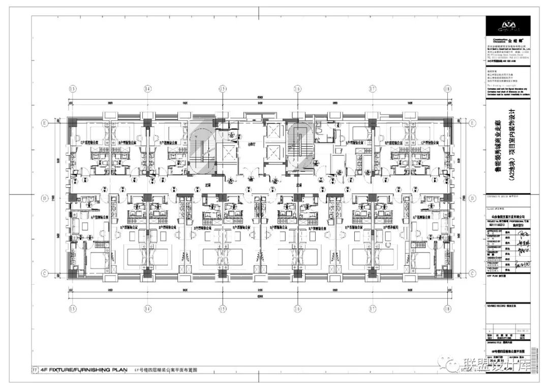
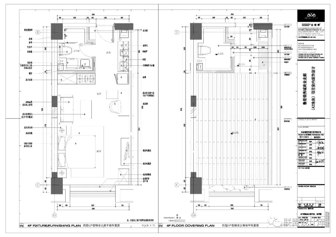
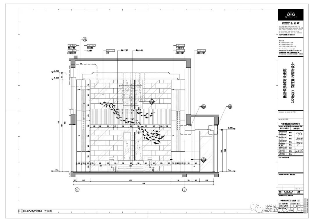
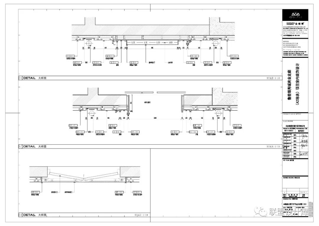
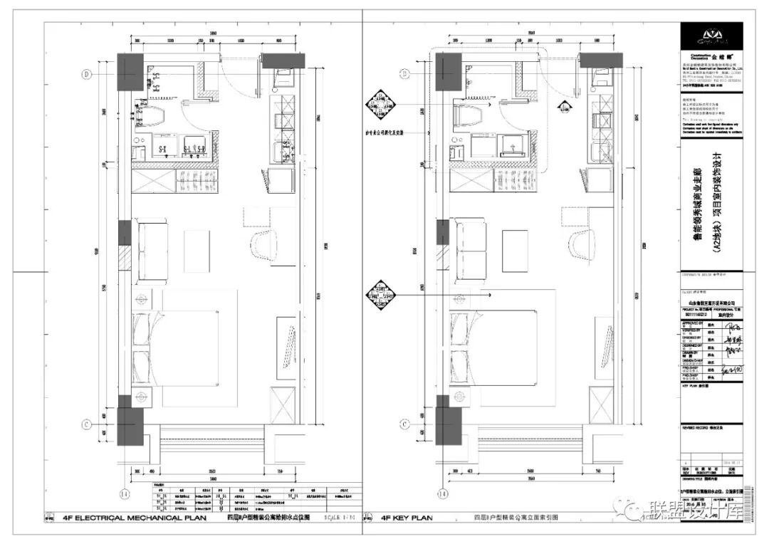
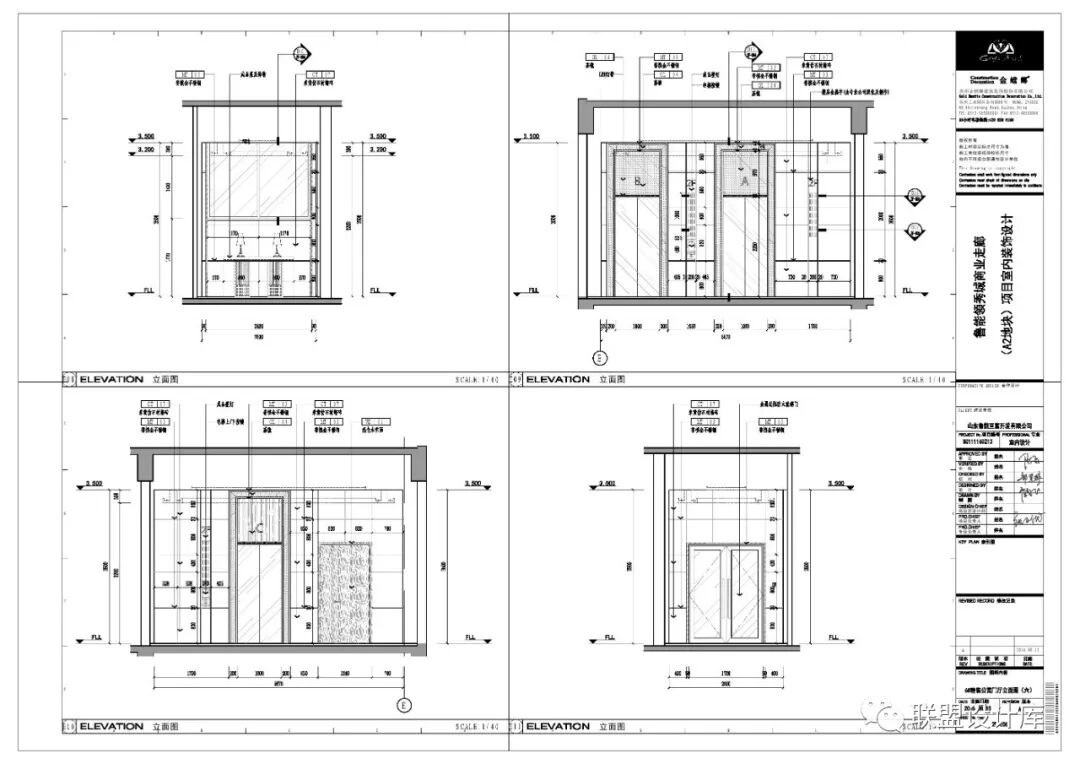
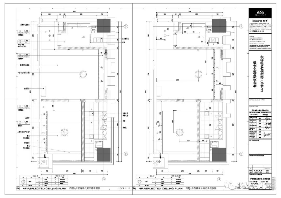
【分享】金螳螂 - 济南精装项目丨入户大堂+电梯厅+样板间丨CAD施工图+PPT方案+效果图丨279M丨694期。是小编网络精心收集,现在免费分享给大家,希望能对你有所帮助。


2

素 材 目 录


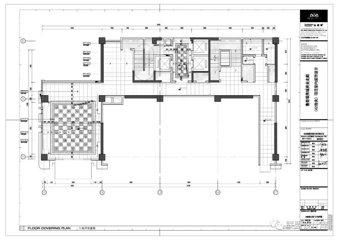
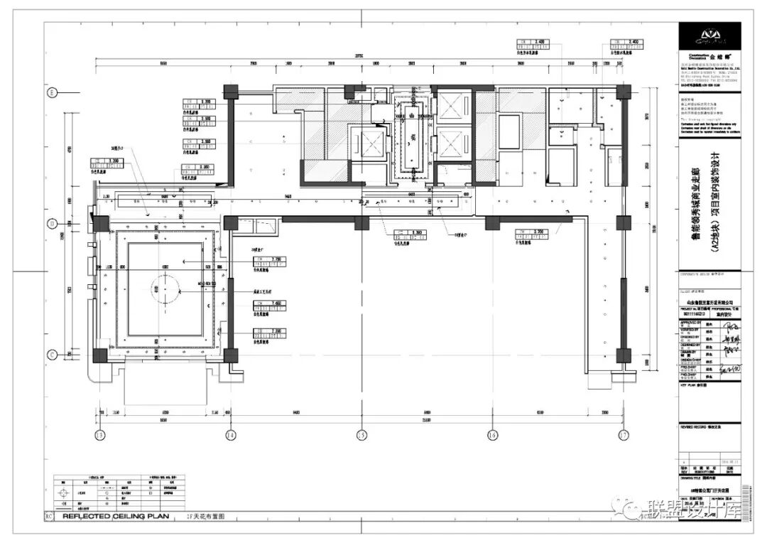
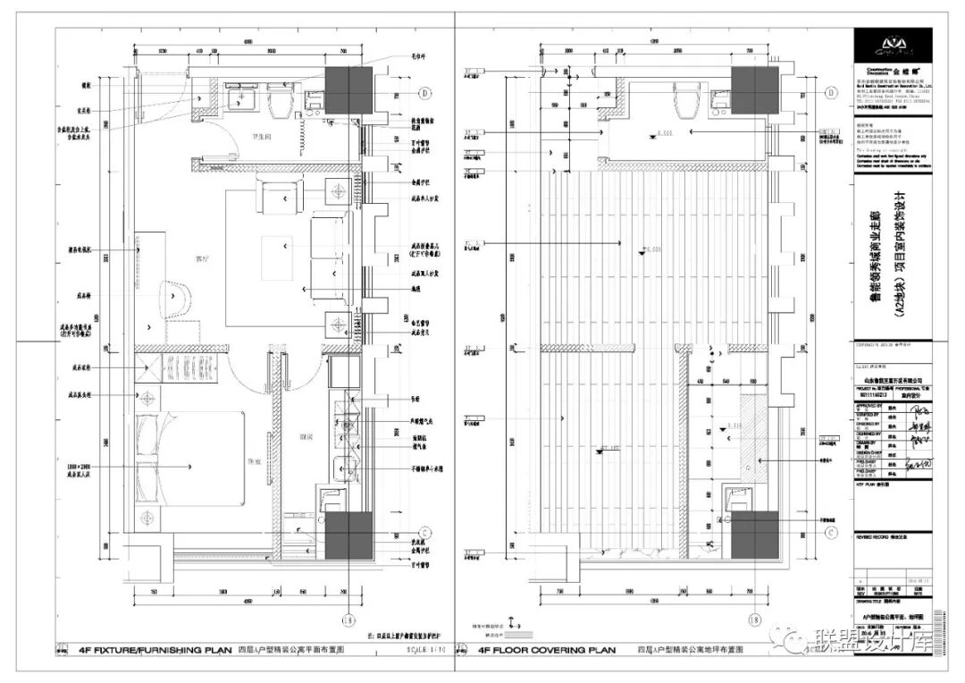
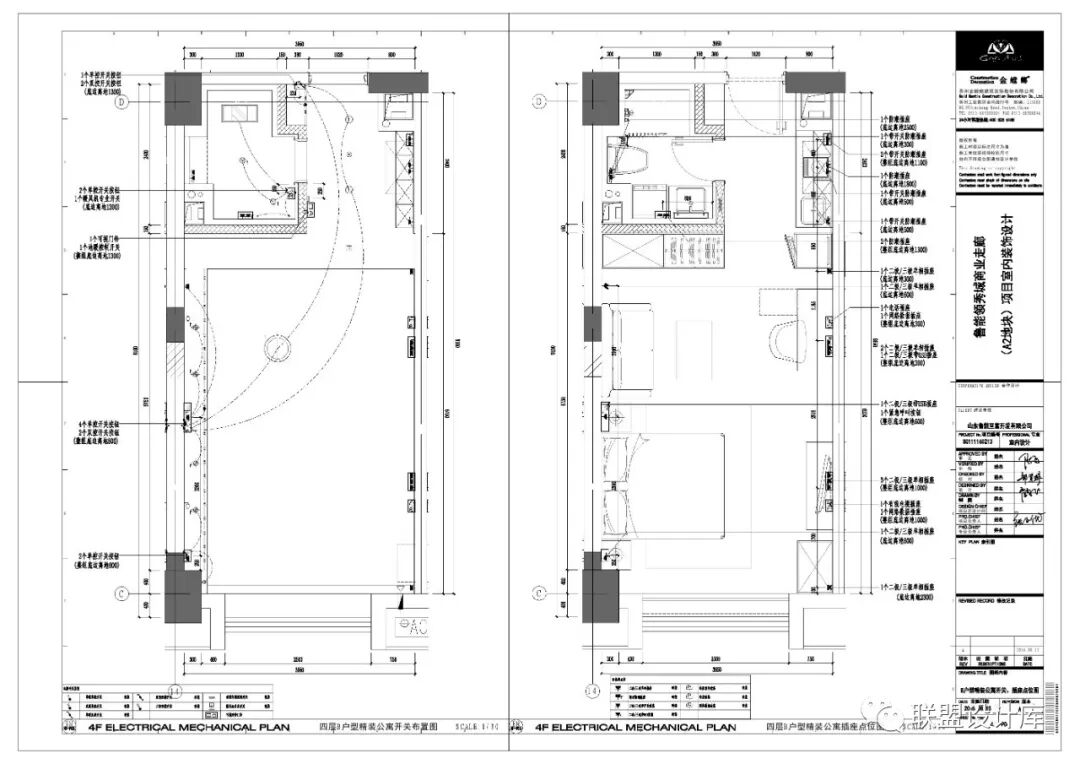
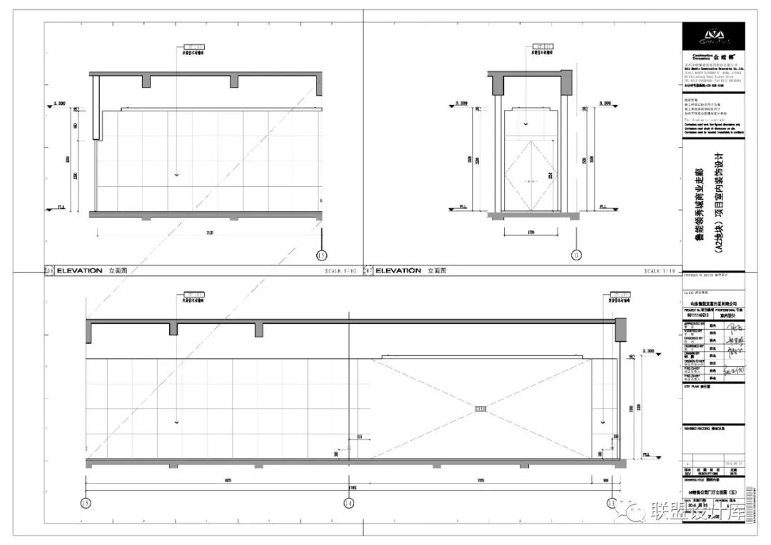
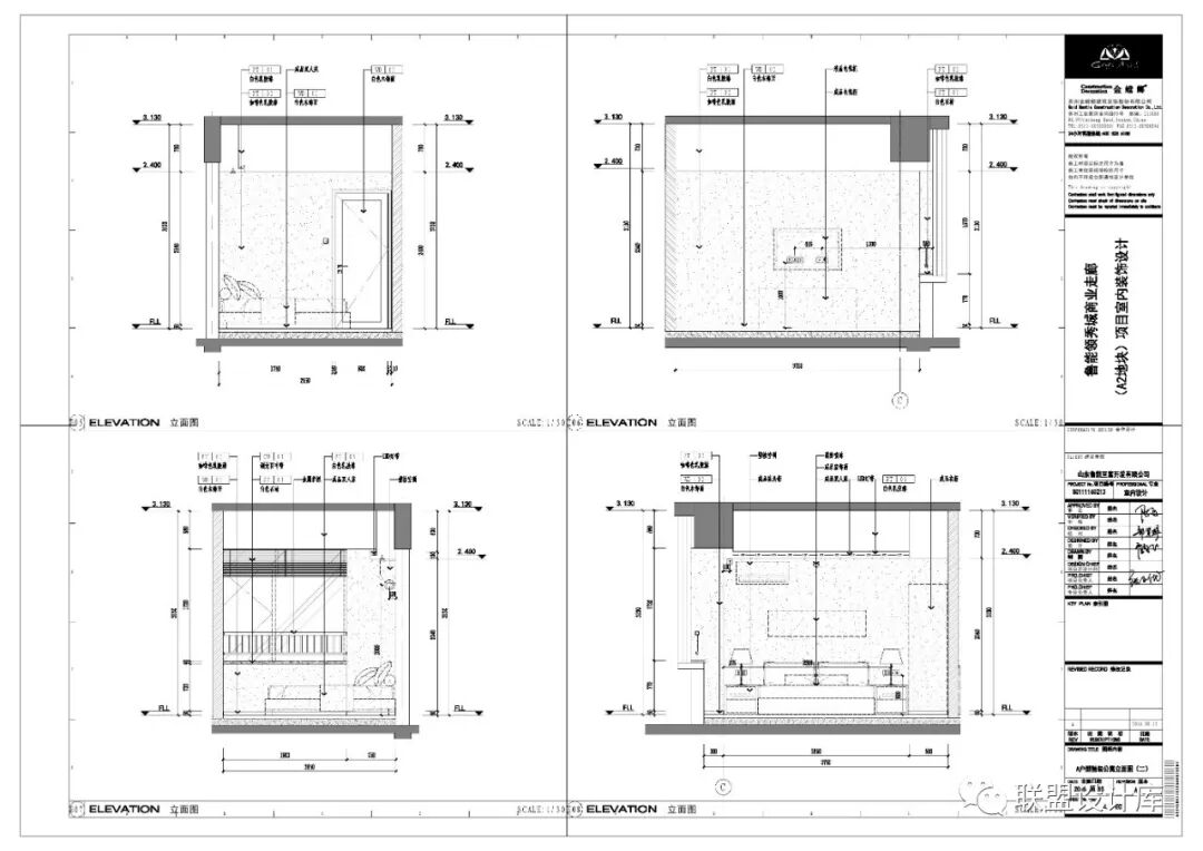
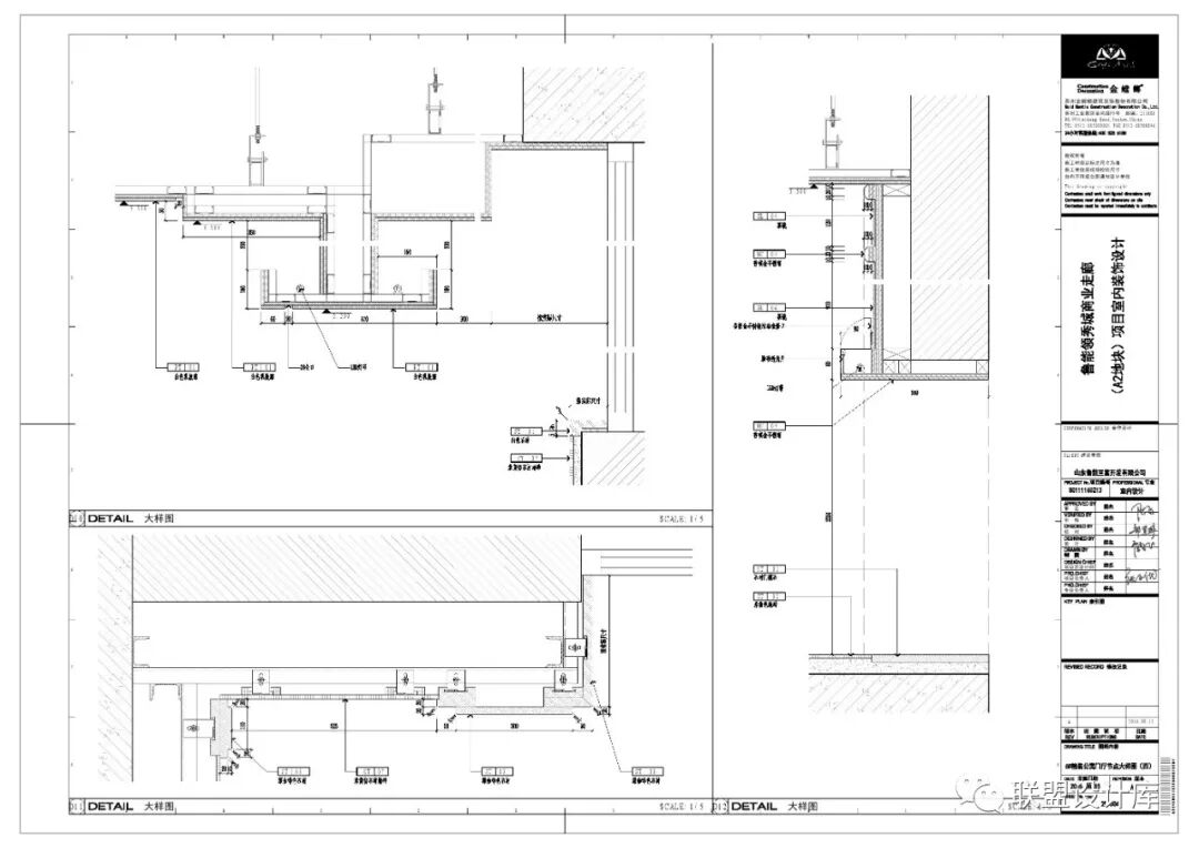
【名称】  入户大堂+电梯厅+样板间
【格式】  JPG+CAD+PPT
【大小】 279M



【01】方案概念PPT


【02】效果图


【03】CAD施工图


3

详 细 介 绍


--  金螳螂 - 济南精装项目丨入户大堂+电梯厅+样板间丨CAD施工图+PPT方案+效果图丨279M丨细预览   --
(以下仅是部分预览,添加微信 : waislh001获取源文件)
(文件太多了,就不一一截图了,详细获取方式,请看下面)

如何获取本套资料?
长按二维码,添加小编微信截图获取!

本帖子中包含更多资源

您需要 登录 才可以下载或查看,没有帐号?注册

x

 

 

始终如此

积分:1100

私信

全部评论
您需要登录后才可以回帖 登录 | 注册

本版积分规则

关闭

站长推荐 上一条 /1 下一条

加微信群

只欢迎设计师加群,做广告的一律不允许,加群请先加微信:snsjlm0

官方微信

关注微信锁定精彩,每日推送精选案例或资讯,公众号:snsjlm!

领取资料

免费领取今年最新设计素材,请联系微信:snsjlm520!

奖项证书

打通协会设计认证通道,提供证书申报服务,微信:13436879894!

  • 联系客服
    •   QQ 44247496

    •   13693232461
    • 工作日:早9点晚6点


      备用联系:15011229364(电话/微信)

  • 二维码

    官方微信/小红书

    关注室内设计联盟

    • 微信扫一扫关注本站公众号

      关注本站公众号
    • 小红书

      关注小红书
  • 发布
  • 收藏
  • 签到