室内设计联盟官网-设计师互动平台 

25实景 24实景 素材严选 设计师证书申报通道


​                           (原始结构图)
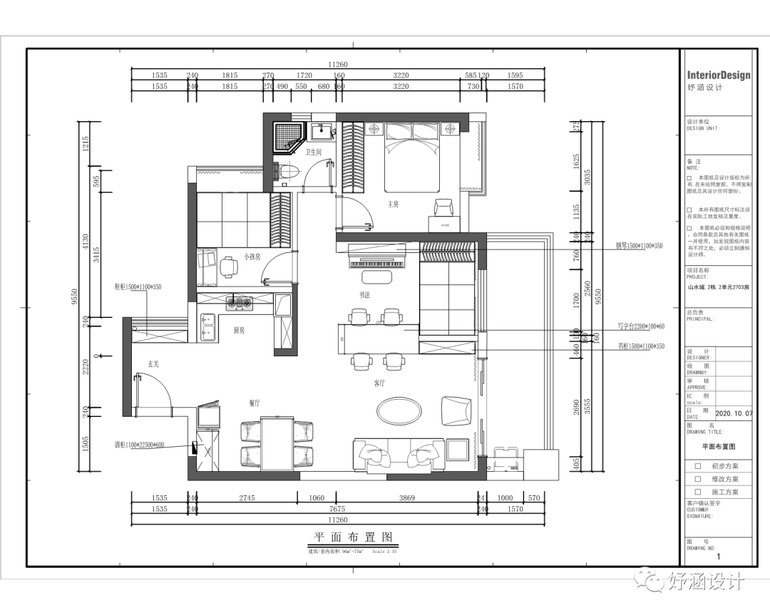
                           (平面布置图)

                                           极致优雅


业主是一家3口。有一个8岁的女儿擅长钢琴,舞蹈。平常老人过来照顾小孩,客厅不要电视机,这是特别强调的问题。然后也需要一个客厅,餐厅,学习三合一的多功能空间,且美观而舒适的生活空间。本案为YuHan design的最新项目,位于广州从化,为年轻夫妇打造,采用极简主义手法,结合原木,创造一个静谧而有气质的室内


01.
客厅

LIVING ROOM



客厅设计讲究纯粹,雅致,通过极简主义手法,赋予空间独特的韵味,带给人一种震撼与宁静。



家具尺寸特意选择尺寸较小,较为简洁的款式,巧用重点照明与辅助照明,营造空间层次感。


02.
玄关

Porch



克制而细腻的设计,让玄关彰显出大宅格调,同时折射出居住者的从容与优雅。


常住人口为小孩及老人,所以厨房设计与配置较为简单。色彩采用黑白配,时尚而有视觉美感。


03.
餐厅

DINING ROOM

餐厅光线充足,柜体颜色与餐桌一致,让空间更简洁纯粹,开放式布局与厨房实现无障碍互动。


04.
厨房

Kitchen




极简主义手法的厨房,收纳设计十分巧妙,兼顾美学与实用性,白色墙砖界定出用厨房区域,灰色的厨柜为厨房空间增添一丝美丽又高级的舒适感,用起来很舒心,柔和的灯光营造了惬意温馨的就餐氛围。

05.
书房

STUDY ROOM




原木与大面积灰白色的调和,配以阳刚的黑色线条,辅以灯光的设计,营造出丰富的层次感。



整个地面采用类似于水磨石纹路地砖,对空间进行虚拟分区,设计格调采用极简白色与清爽自然木饰面搭配,给小小的居室带来足够的明亮感。


项目名称:山水城2栋03户型
地址:广州
面积:75m2
风格:现代极简
项目设计:妤涵设计工作室        
                                 
- THE END -
为每一位志同道合的客户量身定做来设计

手机:13926002342
微信:与手机同号






 

 

衍觅设计

积分:160

私信

全部评论
沙发
hanweiliqb 2020-10-20 14:35 来自: 四川成都
是我卡了??  所有图片都一个样    此图片来自微信公众平台 未经允许不可引用

点评

可加我微信手机同号  详情 回复 发表于 2020-10-21 08:55
板凳
衍觅设计 2020-10-21 08:55 来自: 广东广州
hanweiliqb 发表于 2020-10-20 14:35
是我卡了??  所有图片都一个样     此图片来自微信公众平台 未经允许不可引用

可加我微信手机同号
您需要登录后才可以回帖 登录 | 注册

本版积分规则

关闭

站长推荐 上一条 /1 下一条

加微信群

只欢迎设计师加群,做广告的一律不允许,加群请先加微信:snsjlm0

官方微信

关注微信锁定精彩,每日推送精选案例或资讯,公众号:snsjlm!

领取资料

免费领取今年最新设计素材,请联系微信:snsjlm520!

奖项证书

打通协会设计认证通道,提供证书申报服务,微信:13436879894!

  • 联系客服
    •   QQ 44247496

    •   13693232461
    • 工作日:早9点晚6点


      备用联系:15011229364(电话/微信)

  • 二维码

    官方微信/小红书

    关注室内设计联盟

    • 微信扫一扫关注本站公众号

      关注本站公众号
    • 小红书

      关注小红书
  • 发布
  • 收藏
  • 签到