室内设计联盟官网-设计师互动平台 

25实景 24实景 素材严选 设计师证书申报通道
项目名称:东之居
建筑及配套占地面积:780㎡
建筑面积:280㎡
项目地址:四川宜宾市洛亥镇观斗乡前进村一组
设计师:远东
................................................
下面我暂时放上东之居项目一些基础方案
随后我将陆续更新本项目的施工进度。
欢迎大家进行探讨、提问。
因为我会分享视频,已建立微信群给大家分享短视频以及实时直播。
大家也能认识很多有相同趣味的人。
群已满100人,请添加我微信邀请入群。
地形图
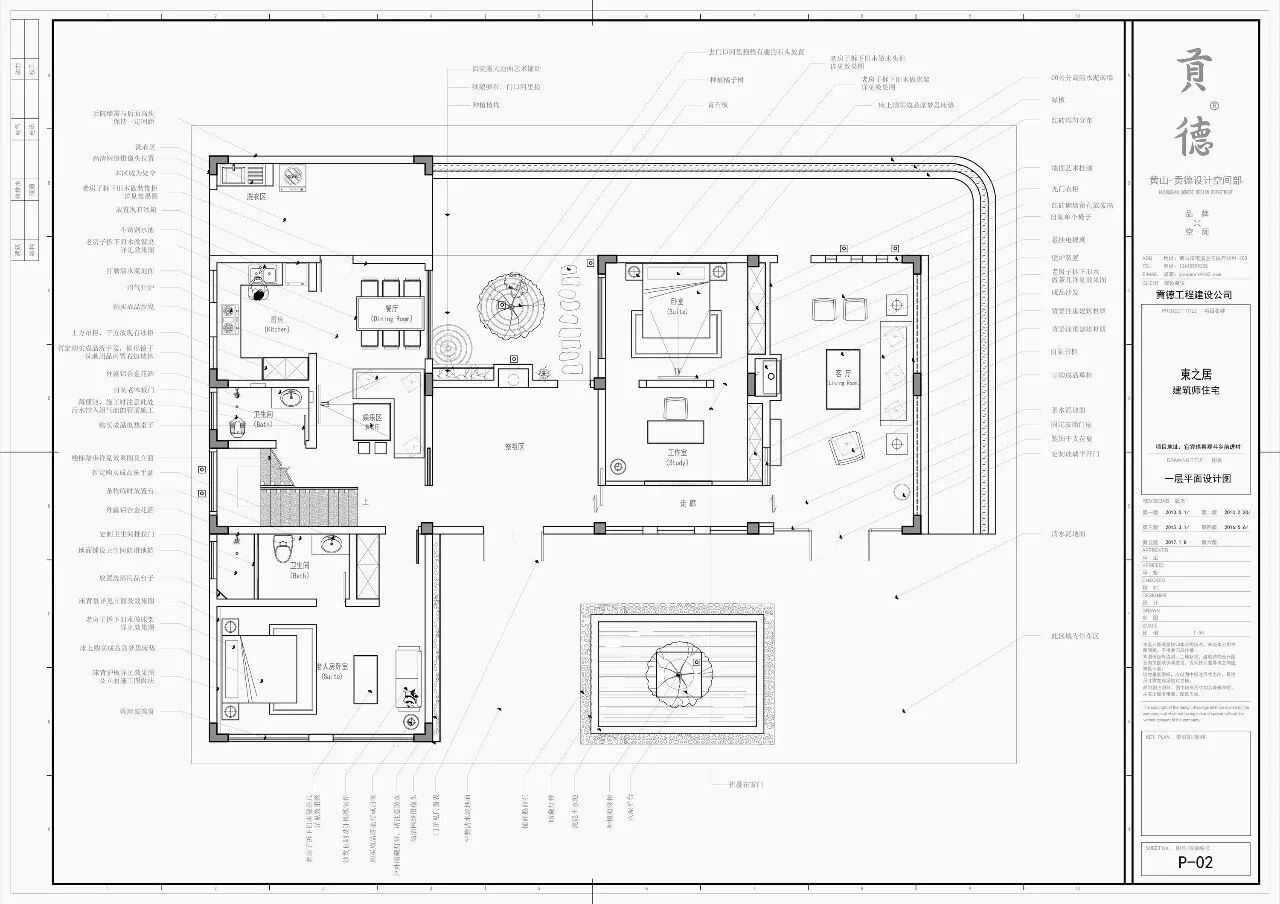
一层平面图
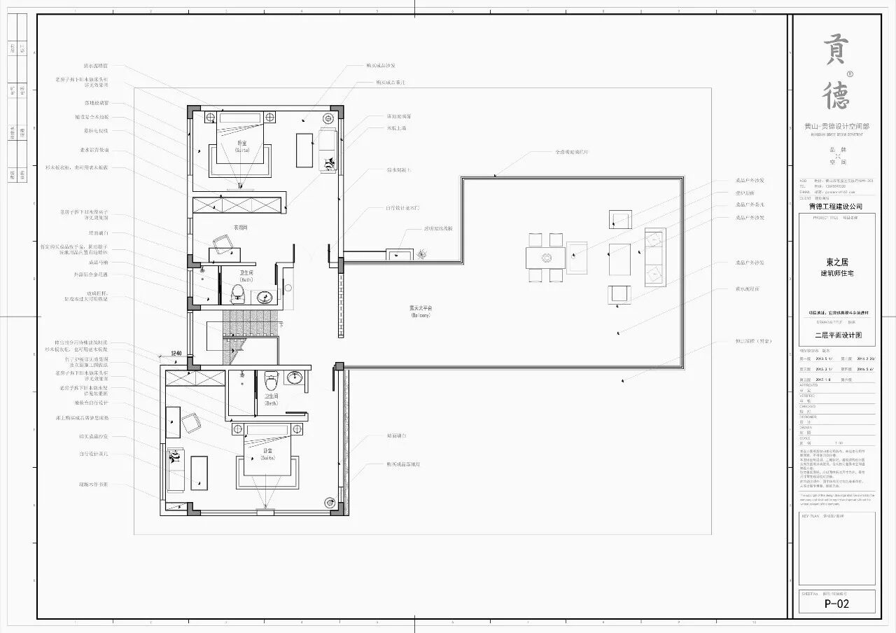
二层平面图
一层总平图
二层总平图
项目剖面图
................................................
东之居项目航拍-原始面貌
................................................
2017/9/10-9/13项目记录

眼睛很大,睫毛很长不好意思漏,哈哈哈哈‘’嗝 哈哈
................................................
2017/9/14项目记录
早上起来,看到山中云雾缭绕,真的很美。
今日进度不大,
................................................
今天就更新一张吧 太多了要看重点才行,图上的是正在挖沼气池的坑。
................................................
2017/9/16项目记录
今天去买材料拖钢筋水泥了
................................................
2017/9/17项目记录
同样在买材料,拉材料
................................................
2017/9/18项目记录
继续买材料拉材料等,还有巩固基础,
地基柱坑清理等。
................................................
2017/9/19项目记录
这几天的进度依然是地基基础
还带着下雨 进度稍慢些。
................................................
2017/9/21-26项目记录
地基基础是大事!
明天就现浇圈梁啦
................................................
2017/9/27-28项目记录
地圈梁已经浇筑完成,养护两天。
................................................
2017/10/1-10/8项目记录
明天开始浇筑柱
2017/10/9项目记录(请期待)施工细节在群里

来自群组: 设计师大联盟

 

 

Gondenrs

积分:31510

私信

全部评论
沙发
给吉米的信 2017-10-12 09:10 来自: 河南济源

回帖奖励 +5

微信号多少啊
板凳
payton09 2017-10-12 10:28 来自: 吉林长春
我的个天,图全挂掉了,更新一下吧楼主。
4楼
rob88 2018-12-21 13:44 来自: 上海
图片不可用。。。
您需要登录后才可以回帖 登录 | 注册

本版积分规则

关闭

站长推荐 上一条 /1 下一条

加微信群

只欢迎设计师加群,做广告的一律不允许,加群请先加微信:snsjlm0

官方微信

关注微信锁定精彩,每日推送精选案例或资讯,公众号:snsjlm!

领取资料

免费领取今年最新设计素材,请联系微信:snsjlm502!

奖项证书

打通协会设计认证通道,提供证书申报服务,微信:13436879894!

  • 联系客服
    •   QQ 44247496

    •   13693232461
    • 工作日:早9点晚6点


      备用联系:15011229364(电话/微信)

  • 二维码

    官方微信/小红书

    关注室内设计联盟

    • 微信扫一扫关注本站公众号

      关注本站公众号
    • 小红书

      关注小红书
  • 发布
  • 收藏
  • 签到