|
设计公司:Graham Baba Architects
位置:美国
类型:展览 办公
材料:木材 玻璃 砖 钢
这间工作室位于西雅图市中心的Belltown,是为展示Lino Tagliapietra的玻璃艺术而设计。Tagliapietra的作品探索了玻璃的极限,包括其形式、质地和色彩。室内空间呈现出平静且克制的基调,与富有戏剧感的作品形成呼应,同时使艺术品本身成为环境中的焦点。
▼工作室外观

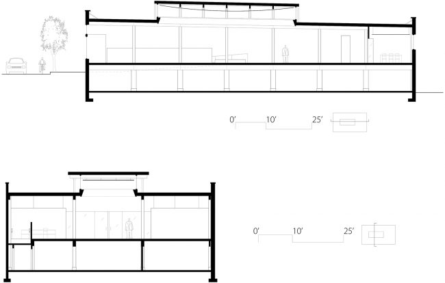
工作室所在的建筑建于1917年,是一个基于木制框架的单层砌砖结构,在城市环境中构成一个安静的角落。以钢材和木材打造的大门定义出入口空间,微微反光的钢板标示出场地的用途。在室内,入口通向一条倾斜的坡道,该坡道与工作室的空间保持了平行。主体空间是一个面积为6100平方英尺的开阔区域。
▼以钢材和木材打造的大门定义出入口空间

▼在室内,入口通向一条平行于主体空间的坡道

室内的砖墙被涂成暗灰色,地面则铺设以精致的白橡木。天花板上悬浮着16英尺宽、45英尺长的光屏。半透明的天窗将日光引入空间。光屏的下腹被塑造为弧形,能够使光线变得更加柔和。光屏下方是明亮的方形空间,可用于悬挂大型的玻璃作品。装置在光屏内的漫射光源还能够在夜间带来迷人灯光效果。
▼主体展示空间

▼天花板上悬浮着半透明的光屏,使光线变得更加柔和

▼不同高度的钢制展示架促进了艺术品的展示

空间内的细节尽可能保持了简洁,旨在为艺术品提供纯净的背景,并成为建筑中固有的一部分。辅助空间包含了玻璃立面的办公室和会议室、洗手间、小厨房以及储藏室等,使主楼层的功能变得更加完善。定制的Europly橱柜和热轧钢板制成的家具与空间形成巧妙搭配。会议桌由施工过程中回收的杉木梁制成。不同高度的钢制展示架与展示墙及天花板共同促进了艺术品的展示。
▼辅助空间

▼办公空间

▼室内细部

▼玻璃艺术品

▼平面图

▼剖面图

设计素材来源于:欧模网设计头条 本文转载至欧模网3d模型下载网站
|