室内设计联盟官网-设计师互动平台 

25实景 风水课 大宅课 设计师证书申报通道
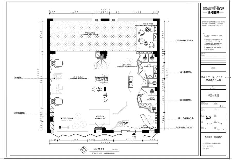
项目位置:金地湖城大境
项目名称:天字一号健身房
设计团队:XINZHU心住
项目面积:3000平方米
项目时间:2016年
施工状态:在施工




我们希望以新的手法介入场所,为这历史悠久的古都注入了全新的气息
We hope to intervene in a new way and inject a new atmosphere into this historic capital.



随着社会的发展,需求的变化以及从感性到理性的认知度上升,宣泄的选项总免不了挥汗淋漓的健身房。,本案位于西安金地湖城大境,服务于热爱健身的都市白领,旨在打造一个年轻舒适,集功能性与趣味性并存的健身空间。
With the development of society, the change of demand and the increase in perceptual to rational cognition, the option of catharsis is inevitably sweaty gym. The case is located in Xianjin, serving urban white-collar workers who love fitness. It aims to create a young, comfortable, functional and interesting fitness space.



装饰几何体巧妙碰撞让整个空间更加具活力,人生的枷锁通过环境的指引,视觉的感受,运动的对抗,仿佛一一打破,从而获取到了自由的力量,如漂浮在浩瀚星洋般自在。
The clever collision of decorative geometry makes the entire space more dynamic. The shackles of life pass through the guidelines of the environment, visual feelings, and the confrontation of motion, as if they were broken one by one, thus gaining the power of freedom, such as floating in the vast ocean.




简洁的几何拼接,通透的光线,白色墙体反映的利落,目及之处,都能感受带来的力量与活力氛围的感染。
Simple geometric splicing, transparent light, white walls reflect the neatness, the goal, can feel the power and vitality brought about by the atmosphere of infection.




在明朗简练的空间里,一切只剩下自我的对抗。通过自律而获取的自由才是真正的果实,自由从来都不是一种散漫自发的状态宽自我的边界能让我们获得满足。健身在作为一项对抗重力运动的同时,也让我们得到了自我释放的爽朗与慰藉。
In the clear and concise space, all that remains is the confrontation of the self. The freedom obtained through self-discipline is the real fruit. Freedom is never a state of loose and spontaneous nature. Broadening our own borders can satisfy us. Fitness as a fight against gravity, but also let us get self-release and comfort.




我们认为AIMO智慧的本意是人类精神领域的力量,是人与人之间的沟通后产生的交互效应,所以让器材摆放更加有社交功能与多元化体验围绕着年轻心态而存在的。
We believe that AIMO's wisdom is intended to be the strength of the human spiritual field. It is the interaction that occurs after the communication between people. Therefore, making equipment placement more socially functional and diversified experiences exists around the youth mentality.







 

 

13571949699

积分:11000

私信

全部评论
沙发
晴爸 2021-4-22 16:31 来自: 山东
66666666666
板凳
gamesomejay 2022-2-23 09:44 来自: 广东江门
6666666666666666666666666666666666666666666666666666666
4楼
18152704805 2022-3-5 17:41 来自: 湖南
看不到图呀
您需要登录后才可以回帖 登录 | 注册

本版积分规则

关闭

站长推荐 上一条 /2 下一条

加微信群

只欢迎设计师加群,做广告的一律不允许,加群请先加微信:snsjlm0

官方微信

关注微信锁定精彩,每日推送精选案例或资讯,公众号:snsjlm!

领取资料

免费领取今年最新设计素材,请联系微信:snsjlm520!

奖项证书

打通协会设计认证通道,提供证书申报服务,微信:13436879894!

  • 联系客服
    •   QQ 44247496

    •   13693232461
    • 工作日:早9点晚6点


      备用联系:15011229364(电话/微信)

  • 二维码

    官方微信/小红书

    关注室内设计联盟

    • 微信扫一扫关注本站公众号

      关注本站公众号
    • 小红书

      关注小红书
  • 发布
  • 收藏
  • 签到