室内设计联盟官网-设计师互动平台 

施工课 风水课 大宅课 设计师证书申报通道

软装设计C.C

积分:13435

私信

在世界,纷繁复杂,抛开不重要的99%,简单归零才是完美状态。屋主是一名审计师,通过好好住找到我们。他喜欢的世界是简单的,希望在进入家门的那一刻就能得到宁静。同时,造型上又得是耐看的、有设计感的,目光所及都是生活满满的小惊喜。
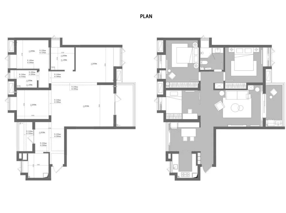
虽然目前房子主要是屋主一人居住,但考虑到未来生活,需要尽可能丰富的储物空间、以及相对较大的儿童房。针对房子的原始格局,我们主要做了这些调整:
1. 门厅巧妙地利用了厨房的原始结构,扩出鞋柜的储藏空间。餐厅卡座的设计满足了储物功能,也让空间走动更方便。
2. 客厅与书房开敞的布局,很好地解决了通风采光问题。移门关闭后,书房里的遮光帘可以保证房间的私密性。
3. 舍弃了原始户型的客卫,扩到了儿童房作为活动空间。整面墙的柜体和书桌,让儿童房也可以充当衣帽间使用,空间不闲置。
4. 主卧与客厅之间的墙面,进行了错位的柜体设计,不占用房间面积的同时,也保证客厅看电视是最佳视距。
客 厅
客厅贯穿全屋的色彩搭配,以灰色和蓝色铺展开来,能让眼睛放松下来。电视墙将线路进行巧妙隐藏。
嵌入式的展示柜,是沙发背景墙的一个亮点。搭配几何感的装饰画、棉麻的抱枕、垂感很好的窗帘,让北欧的感觉更加纯粹和分明。
阳光被纱帘过滤得更加柔和,空间呈现一种至纯至真的状态,很美好。
餐 厅
两把精致的橙色皮椅,作为空间活跃色。另一边用一组可储物的卡座代替椅子,更加节省空间。
无论是享受美食、饮酒品茶,还是拿本书休息一下,在这里能解锁N+种舒服的生活方式。
厨房设计了两扇轻松开合的谷仓门,爆炒时临时分割,完全敞开时通风透气,也让餐厅光线更佳。
书 房
用榻榻米来释放空间,贴墙设计了衣柜和书桌。清爽的黑白配色,堪称静心去油配方,很适合书房。
主 卧
浅浅的蓝色将卧室调和成平衡舒适的境地。一幅挂画、少量装饰,色调干净充满归属感。哦,爱了~
儿 童 房
屋主不喜欢太多色彩,用少许姜黄来提亮是个不错的选择。美好明媚、像是向日葵一样,让灰白空间避免寡淡。
浅灰墙面中加了一节木饰面进行跳跃,可爱的小人摆件,有没有让你眼前一亮的感觉呢?
整面墙的顶天立地柜搞定收纳,靠窗设计了书桌,也可以作为梳妆台。玩法多样,因需而变。

空间类型|平层
建筑投影面积|123平
项目地址|武汉·新城璟汇
空间形式|电梯大楼
空间格局| 3室2厅1厨2卫1阳台
项目设计|有宅设计
项目施工|有宅施工
摄影|有宅设计


 

 

软装设计C.C

积分:0

私信

全部评论
沙发
软装设计C.C 2019-9-11 11:32 来自: 中国
喜欢的朋友可以关注我,室内色彩搭配秘籍分享给大家~

色彩搭配.rar

111.94 KB, 下载次数: 958

板凳
q331677669 2019-9-12 15:26 来自: 江苏
结构改的很喜欢
4楼
型概念123 2019-9-18 15:01 来自: 黑龙江齐齐哈尔
66666666666666666
您需要登录后才可以回帖 登录 | 注册

本版积分规则

关闭

课程推荐 上一条 /1 下一条

加微信群

只欢迎设计师加群,做广告的一律不允许,加群请先加微信:snsjlm0

官方微信

关注微信锁定精彩,每日推送精选案例或资讯,公众号:snsjlm!

领取资料

免费领取今年最新设计素材,请联系微信:snsjlm520!

奖项证书

打通协会设计认证通道,提供证书申报服务,微信:13436879894!

  • 联系客服
    •   QQ 44247496

    •   13693232461
    • 工作日:早9点晚6点


      备用联系:15011229364(电话/微信)

  • 二维码

    官方微信/小红书

    关注室内设计联盟

    • 微信扫一扫关注本站公众号

      关注本站公众号
    • 小红书

      关注小红书
  • 发布
  • 收藏
  • 签到