|
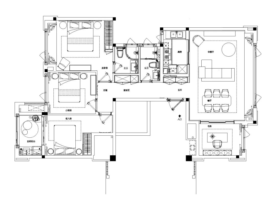
 在各路美学思潮竞相展露的今天,东方与现代依然是设计师无法回避的大势。创时空设计秉持“承袭人文之间,创新意想之余”的理念,抛开一味因袭守旧的思维定式,游走在东方与现代的创想之中,构就一个个意蕴绵长的生活空间,东方的哲美意涵与现代的时尚情调交织共映,让人栖居在艺术的深意之中。 在建发·玺樾B1户型样板房的软装设计中,创时空设计汲取东方的和雅蕴涵,活用中式的古意与诗韵,以艺术速写焕然一新的注解,营造出清隽风雅的的东方人居范本。 客厅空间衍脉自深厚邈远的传统文化,从家具的形制、流线、色泽,到墨枝斜逸、山掩人家的书法挂画,均镌刻着东方诗性的肌理,流露出自信大方的悠悠风骨。红叶花艺的点缀,绿植端景的映衬,为空间更添一抹明丽的神采,生气悠长。 餐厅软饰延续了中式风格中端雅稳重的设色意图,在水墨山川、阡陌林舍的艺术画格调烘托下,赋予空间内敛含蓄的艺术风韵。玉石圆扇的灯饰组合、古朴雅致的餐具、光洁红釉花器、清透山峦摆件,空间附着一层氤氲意境,中式意蕴的艺术特质一展无遗。 主卧选用浅杏色为背景主调,在木质、软包材料的拼接下,加入深蓝点缀,画幅上松竹树枝旁逸斜出,增加了空间质感的丰富性。阳光自轻纱漫进室内,一盏清茶,聊寄浮生乐事,闲适间尽得生活意趣。 老人房的布设延续了素净的色调,在这里,东方的韵味是深厚浓郁的,带着岁月打磨与沉淀的痕迹。几何艺术的变奏,在方圆分寸之间,红鲤嬉游莲叶间的抽象意境,与干枝花艺对比鲜明,素雅间亦有和润质感。 薄荷绿调的运用,映照着满室清冽质朴、自然沁人的空间格调,携同纸艺小扇的墙面艺术装置,中和了木艺棕调的厚重感,抒写着儿童房的轻快韵律,寻回简单纯粹的氛围。 书房的东方韵味,在于文墨气息,此间书案与文房四宝俱齐,深色调书架上的卷帙与器物营造出艺术文化氛围。飘逸清雅的泼墨线条,自艺术画延伸到地毯,凝住一室书香气质。 在建发·玺樾A2户型样板房的软装设计中,创时空设计发挥艺术的创想,以简练自在的笔法,描摹现代的艺术情调,缔造了一个时尚优雅的都会空间。 设计师用高级灰的色调语言诠释都会气质,将几何意象转译为简约的美学语素,金色艺术装置在光滑表面与精致纹路的组合下,映衬得大理石背景墙肌理线条清隽而素雅,与静谧灰调沙发、单椅气质相融,在简约中觅得艺术的韵味。 餐厅与客厅开放式相连,邻接大面积的窗户,自然光的介入使整个空间敞亮而干净。设计师以较少的色彩着笔,搭配简约又不失质感的家具与器饰,构建出了一个现代时尚、优雅大方的所在。 主卧的背景墙以木艺与布艺的材质拼接,加入木色与爱马仕橙的对比,以及几何元素的美学变形,以艺术画的抽象气质,贴合着空间中流动的时尚气息,一种恰到好处的优雅散发开来,完成了空间氛围的营造,温柔而舒缓身心。 老人房的格调由柔和的亚麻色铺叙开,舒适亲肤的床品、简单大方的装饰、充足的自然光线以及推窗可见的好风景,组成这个空间的整体印象,让人在简净素雅中安享生活之美。 儿童房在灰调的延续中,增添了一抹橙调与蓝调作为点缀,于优雅的气息中加入充满活力的因子,更符合成长中孩童的节奏感,活泼而灵动。 书房是安静的一隅,在墨色与橙色的搭配下,时尚的质感更加浓厚,现代艺术的气息流淌一室,漫延至空间的每一处细节,更加契合居者对艺术与生活相融的向往与追求。 B1户型
A2户型
项目面积:B1户型143 ㎡/ A2户型131 ㎡
|