
自然的景色的生命,存在于人的心中,要理
解它,就需要对它有所感受。
——(法)卢梭
习惯了城市里的钢筋水泥,对于自然风光便有了更多的渴望。如《瓦尔登湖》中所言:我步入丛林,因为我希望生活得有意义,我希望活得深刻,并汲取生命中所有的精华。
设计师秉着对自然风景的欣赏与敬畏,以视觉艺术营造森林景观,结合“五感”于空间动线的关系,旨在打造一个“沉浸式体验公园”,让所有用户都能感受到深沉的静谧,体验属于公园里的慢生活。
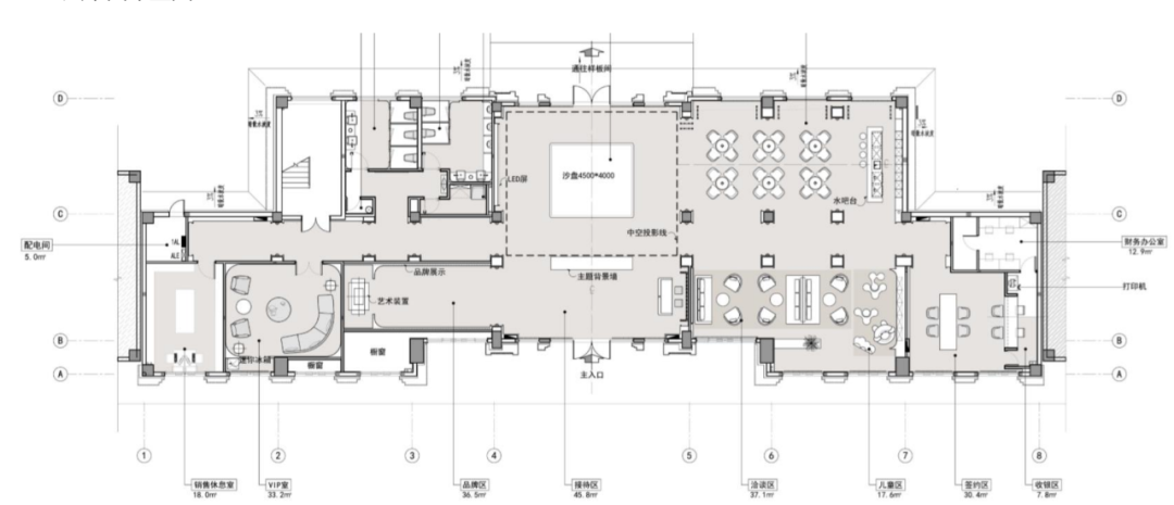
项目 翠色写意 描摹自然之境
“素晖射流濑,翠色绵森林。”清新的自然绿是原野最纯粹的美,能唤醒人们内心质朴的情感。春夏秋冬,绿色总为自然增添生机。
森林是广阔无边,又满含包容的。我们融情于景,以无限延伸的直线与舒展的大理石花纹,来营造明朗开阔的空间格局,激活公园里的观赏美学与实用功能。
沉浸式 光影空间
一缕暖阳,为景色中的肌理带来更丰富层次。当阳光透过小窗,在墙壁上投照出浅浅淡淡温柔的树影、斑驳的光影,交错互映间,展现出不同季节变化的景象,仿佛让人置身漫步于公园里的绿林之中,感受视觉与心灵上的双重涤荡。
静看一本书,静听一首歌,静待一朵花的绽放。我们将自然中的花草与树木,天空与大地,融入设计,让每个人能驻足停留,感受内心深处的平静,体悟一份悠然自得的慢生活。
返璞归真 慢写生活 大自然是才华横溢的艺术家,借景自然,我们采用棉麻、石材、青苔、花瓣等材质,融合于空间之中,使整个氛围质感更加贴近自然而细腻,让人产生回归大自然的深切体验。
VIP室,通过旧物与自然构建起来的空间氛围,贯穿在空间的绿色植物和苔藓以及木作的茶几,将自然生长的状态表现出不同层级的肌理,让人感到一种历久的美感。
签约区的灯光以暖色为主,映照大理石折射出朦胧如梦的诗意感,整个空间呈现淡雅闲适的氛围,让人产生一种“偷得浮生半日闲”的梦幻体验。
无论是青苔、树木,墙上的点缀画亦或儿童区的大片草坪,所到之处留下的,是悠柔的宁静,和童真的纯朴。室内的鱼缸十分引人注目,水草和着碧波游荡,金鱼穿梭自由,时间仿佛在此刻静止,留给人深沉的静谧享受。
“一花一世界,一叶一菩提。”任时间匆匆流过,在这草木繁花中,拾掇我们内心的喜悦与自由,寻觅失落的安静与祥和,让刹那成为永恒。
项目名称 | 西宁万科·公园里销售中心 项目地点 | 青海西宁 完成时间 | 2020年7月
业主单位 | 西宁万科企业有限公司
软装设计 | 设计一组@GNU软装事业部
设计总监 | 龙海玲
创意总监 | 余秋兵
设计机构 | 东莞市金秋装饰设计有限公司
企业网站 | www.gnudesign.cn
摄影 | 赵彬
|