|

同是天涯设计师:低调时,我们不骄不躁;高傲时,就像一支“亮剑”,我们一起拼博、奋进、相互交流。
01号 憶晨夕&阿德 



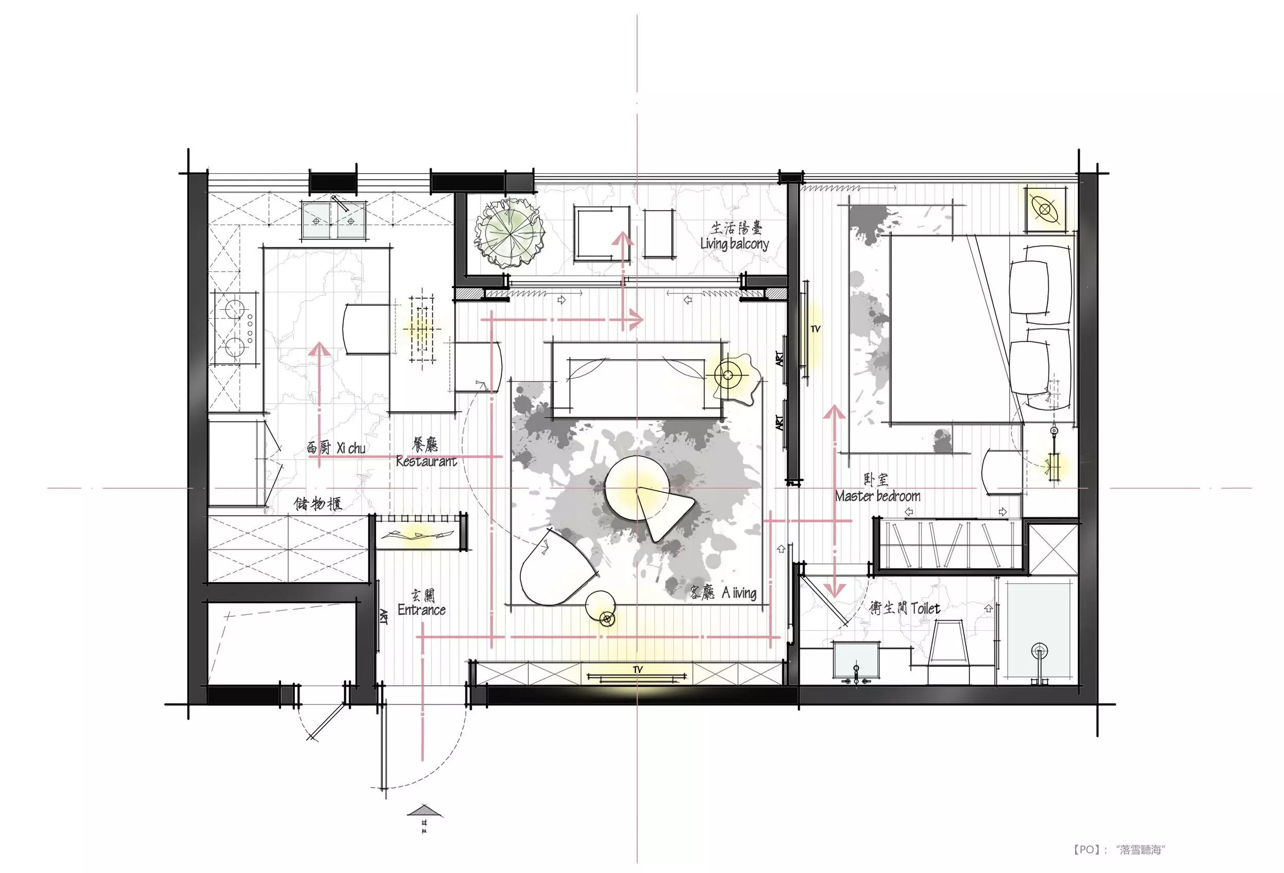
02号 落雪聽海 



03号 薄情郎 




04号 Raytown 
05号 老K 
06号 后知后觉&5566 
07号 x_design 
08号 春妮&大卫 
09号 陈益达 
10号 用户名不敢忘记 

11号 蝉丹子 
12号 童心 
13号 M H W 
14号 小兵 



楼主语: 有多少个设计师就有多少种方案,看到喜欢的可以收藏一下。好好学习,天天向上,向大神们致敬!!! + 微信:FYDSJ8888
|