室内设计联盟官网-设计师互动平台 

25实景 24实景 素材严选 设计师证书申报通道
威卢克斯中国办公楼

是中国第一个“Active House”建筑实践案例。由中国建筑科学研究院对建筑外墙、屋面、外窗、建筑整体气密性、室内环境及空调通风系统的性能测试数据表明,整个大楼的实际年电耗水平为33kwh/㎡/a,为中国此类建筑平均能耗的五分之一 项目信息 建筑类型:办公楼 建筑设计:丹麦总部BI部门 建 筑 师:亨里克•诺兰德•史密斯(丹麦)、涅什卡•希维尔切夫斯卡(丹麦)、郭成林(中国) 能源工程师:艾默里克•诺韦尔(法国) 采光分析:丹麦总部EDIC部门、威卢克斯(中国)有限公司 能源概念设计:丹麦科威(COWI)咨询公司 能源施工设计:法国公司特瑞欧(TERAO)公司 项目地点:河北廊坊经济技术开发区百合道21号 建筑面积:2080平方米 施工图设计:易筑建筑设计(原中太建设集团(廊坊)建筑设计有限公司)  

立面设计是低能耗建筑物的关键,这需要“智能”的立面设计和门窗布局,从而在冬季被动式太阳能供暖、夏季遮阳、日光捕获和自然通风中间找到制衡点。与绝大多数传统办公楼相比,梯形的设计更富动感,传递出阳光在屋顶窗间的流动感受。  





阳光透过倾斜的建筑立面径直射入建筑物内部。办公室之间的玻璃隔墙、开放式楼梯和吊顶缝隙均保障了室内完美的日光覆盖。白色的墙体和吊顶既美观又经济,且可最大程度地降低照明用电。  



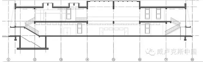
建筑立面和地下空间,由296樘威卢克斯窗组成的多条采光带,建筑中庭位置采用VMS商用天窗系统,加速室内自然的通风换气。  


室内气候 &自然通风  
建筑中庭VMS商用天窗和立面威卢克斯窗组成采光带,带来充足的日光减少了人工照明的使用。同时畅快的自然通风,利于炎热季节的散热。  
  




能源 效率  
— 建筑主动蓄热/冷系统:这是一种在混凝土板中嵌入水管道的采暖/冷网络系统。搭配地源热泵和室外风机组(风量可变),建筑蓄热/冷系统能创造舒适室内气候并且可以大幅度节能。 — 高效保温隔热且不透风的围护结构有效降低了冬季的热损失。岩棉保温地板:250 mm厚;屋顶:200 mm厚;墙体:200 mm厚。 — 基于二氧化碳智能控制的通风系统 — 使用VMS商用天窗系统和智能电控窗 — 太阳能集热器,用于室内生活热水供应 — 智能控制的室内外遮阳帘,隔热效果极佳,减少炎热天气的制冷耗能 — 热泵:利用土地热能,对建筑进行制冷或供暖  

建筑能耗 监控  

工作娱乐 两相宜  



Active House 主动式建筑  

即建筑开发应重视低能源消耗、健康舒适的室内环境,适应具体建筑特性和地区气候条件之间的良性互动。威卢克斯依据此理念,已相继在欧美12个国家建造完成了22个节能示范建筑。 威卢克斯集团作为“Active House”国际建筑联盟发起者,一直积极参与可持续建筑研究、实践与推广。  



 

 

veluxchn

积分:395

私信

全部评论
沙发
PINCHE0208 2016-3-10 09:07 来自: 浙江温州
不错的东西
您需要登录后才可以回帖 登录 | 注册

本版积分规则

关闭

站长推荐 上一条 /1 下一条

加微信群

只欢迎设计师加群,做广告的一律不允许,加群请先加微信:snsjlm0

官方微信

关注微信锁定精彩,每日推送精选案例或资讯,公众号:snsjlm!

领取资料

免费领取今年最新设计素材,请联系微信:snsjlm520!

奖项证书

打通协会设计认证通道,提供证书申报服务,微信:13436879894!

  • 联系客服
    •   QQ 44247496

    •   13693232461
    • 工作日:早9点晚6点


      备用联系:15011229364(电话/微信)

  • 二维码

    官方微信/小红书

    关注室内设计联盟

    • 微信扫一扫关注本站公众号

      关注本站公众号
    • 小红书

      关注小红书
  • 发布
  • 收藏
  • 签到